| 
		
			
		 | 
		
		
			
				
						
							
							
								 
							
						
    				
				
			
		 | 
		
		
		
		
		
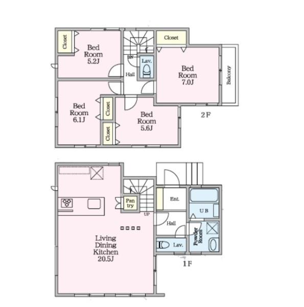
			注目のポイント!! 
			家族にうれしいカースペース2台分。約18.9帖のゆとりあるLDKは、自然と家族が集まる心地よい空間です。雨の日も安心のインナーバルコニーで生活がさらに快適に。 
		
		
		- 
			所在地/交通
 
			神奈川県横浜市鶴見区上末吉2丁目/JR京浜東北線/鶴見駅  バス9分 末吉不動前/停歩3分  
		
		- 
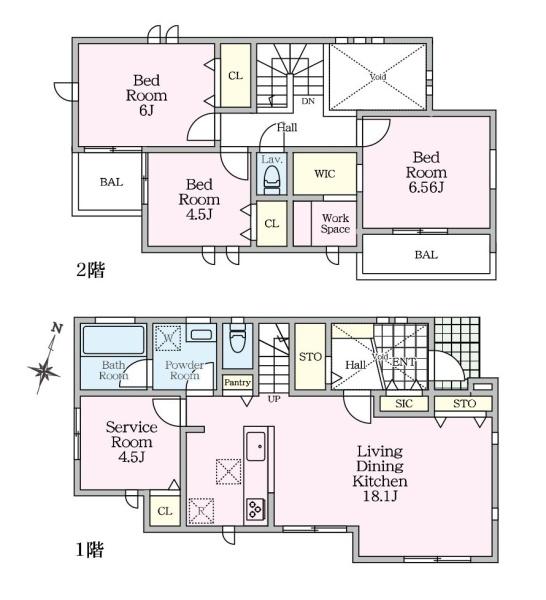
			価格/間取り
 
			4,980万円/3LDK 
		- 
			建物面積/土地面積
 
			105.15㎡/69.35㎡  
		
		 
		  | 
	
	
		|   | 
		
		
				
			
			
		 | 
		
		
		|   | 
		
		
		
		
		
		
		| 
		
			
		 | 
		
		
			
				
						
							
							
								 
							
						
    				
				
			
		 | 
		
		
		
		
		
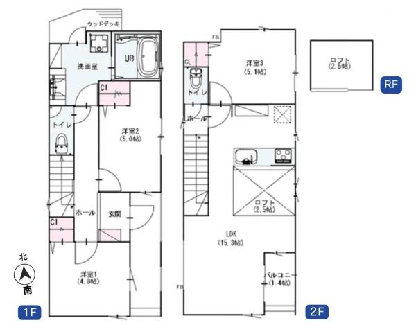
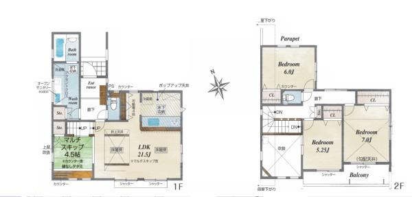
			注目のポイント!! 
			お荷物の多い方でも安心の6.88帖ロフト付き。駐車が苦手な方にも嬉しい前面8m道路に面した住まい。 
		
		
		- 
			所在地/交通
 
			神奈川県横浜市鶴見区下末吉6丁目/JR京浜東北線/鶴見駅  バス10分 三ツ池公園入口/停歩2分  
		
		- 
			価格/間取り
 
			4,880万円/3SLDK 
		- 
			建物面積/土地面積
 
			86.53㎡/118.68㎡  
		
		 
		  | 
	
	
		|   | 
		
		
				
			
			
		 | 
		
		
		|   | 
		
		
		
		
		
		
		| 
		
			
		 | 
		
		
			
				
						
							
							
								 
							
						
    				
				
			
		 | 
		
		
		
		
		
			注目のポイント!! 
			お荷物の多い方でも安心の2WIC付き。駐車が苦手な方にも嬉しい前面8m道路に面した住まい。 
		
		
		- 
			所在地/交通
 
			神奈川県横浜市鶴見区下末吉6丁目/JR京浜東北線/鶴見駅  バス10分 三ツ池公園入口/停歩2分  
		
		- 
			価格/間取り
 
			5,680万円/4LDK 
		- 
			建物面積/土地面積
 
			99.98㎡/125.01㎡  
		
		 
		  | 
	
	
		|   | 
		
		
				
			
			
		 | 
		
		
		|   | 
		
		
		
		
		
		
		| 
		
			
		 | 
		
		
			
				
						
    				
						 
    				
				
			
		 | 
		
		
		
		
		
			注目のポイント!! 
			18帖のゆとりのあるLDKは自然とご家族が集まる空間に。全居室収納スペース付き。 
		
		
		- 
			所在地/交通
 
			神奈川県横浜市鶴見区北寺尾3丁目/JR京浜東北線/鶴見駅  バス15分 寺尾中学入口/停歩6分  
		
		- 
			価格/間取り
 
			4,380万円/4LDK 
		- 
			建物面積/土地面積
 
			90.77㎡/93.92㎡  
		
		 
		  | 
	
	
		|   | 
		
		
				
			
			
		 | 
		
		
		|   | 
		
		
		
		
		
		
		| 
		
			
		 | 
		
		
			
				
						
    				
						 
    				
				
			
		 | 
		
		
		
		
		
			注目のポイント!! 
			家事を助ける食洗機、雨の日も安心の浴室乾燥機など、毎日を快適にサポートする設備が充実。暮らしやすさと上質なライフスタイルを両立した、こだわりの住空間です。 
		
		
		- 
			所在地/交通
 
			神奈川県横浜市鶴見区北寺尾7丁目/東急東横線/菊名駅 徒歩25分    
		
		- 
			価格/間取り
 
			4,780万円/4LDK 
		- 
			建物面積/土地面積
 
			93.14㎡/85.9㎡  
		
		 
		  | 
	
	
		|   | 
		
		
				
			
			
		 | 
		
		
		|   | 
		
		
		
		
		
		
		| 
		
			
		 | 
		
		
			
				
						
    				
						 
    				
				
			
		 | 
		
		
		
		
		
			注目のポイント!! 
			家事を助ける食洗機、雨の日も安心の浴室乾燥機など、毎日を快適にサポートする設備が充実。暮らしやすさと上質なライフスタイルを両立した、こだわりの住空間です。 
		
		
		- 
			所在地/交通
 
			神奈川県横浜市鶴見区北寺尾7丁目/東急東横線/菊名駅 徒歩25分    
		
		- 
			価格/間取り
 
			4,880万円/4LDK 
		- 
			建物面積/土地面積
 
			110.63㎡/80.69㎡  
		
		 
		  | 
	
	
		|   | 
		
		
				
			
			
		 | 
		
		
		|   | 
		
		
		
		
		
		
		| 
		
			
		 | 
		
		
			
				
						
    				
						 
    				
				
			
		 | 
		
		
		
		
		
			注目のポイント!! 
			家事を助ける食洗機、雨の日も安心の浴室乾燥機など、毎日を快適にサポートする設備が充実。暮らしやすさと上質なライフスタイルを両立した、こだわりの住空間です。 
		
		
		- 
			所在地/交通
 
			神奈川県横浜市鶴見区北寺尾7丁目/東急東横線/菊名駅 徒歩25分    
		
		- 
			価格/間取り
 
			4,880万円/4LDK 
		- 
			建物面積/土地面積
 
			106.61㎡/80.55㎡  
		
		 
		  | 
	
	
		|   | 
		
		
				
			
			
		 | 
		
		
		|   | 
		
		
		
		
		
		
		| 
		
			
		 | 
		
		
			
				
						
							
							
								 
							
						
    				
				
			
		 | 
		
		
		
		
		
			注目のポイント!! 
			JR鶴見線「安善」駅より徒歩9分。ゆとりのある広々19帖超えLDK。収納スペース充実してます! 
		
		
		- 
			所在地/交通
 
			神奈川県横浜市鶴見区朝日町2丁目/JR鶴見線/安善駅 徒歩9分    
		
		- 
			価格/間取り
 
			4,980万円/2SLDK 
		- 
			建物面積/土地面積
 
			102.66㎡/79.59㎡  
		
		 
		  | 
	
	
		|   | 
		
		
				
			
			
		 | 
		
		
		|   | 
		
		
		
		
		
		
		| 
		
			
		 | 
		
		
			
				
						
							
							
								 
							
						
    				
				
			
		 | 
		
		
		
		
		
			注目のポイント!! 
			JR鶴見線「安善」駅より徒歩9分。ゆとりのある広々20帖超えLDK。収納スペース充実してます! 
		
		
		- 
			所在地/交通
 
			神奈川県横浜市鶴見区朝日町2丁目/JR鶴見線/安善駅 徒歩9分    
		
		- 
			価格/間取り
 
			5,180万円/3SLDK 
		- 
			建物面積/土地面積
 
			117.38㎡/64㎡  
		
		 
		  | 
	
	
		|   | 
		
		
				
			
			
		 | 
		
		
		|   | 
		
		
		
		
		
		
		| 
		
			
		 | 
		
		
			
				
						
							
							
								 
							
						
    				
				
			
		 | 
		
		
		
		
		
			注目のポイント!! 
			ビルトイン車庫で雨風から大切なお車をお守します。スーパーまで徒歩3分でお買い物に便利な立地です。 
		
		
		- 
			所在地/交通
 
			神奈川県横浜市鶴見区東寺尾2丁目/京急線/生麦駅  バス19分 宝蔵院前/停歩5分  
		
		- 
			価格/間取り
 
			4,130万円/3LDK 
		- 
			建物面積/土地面積
 
			87.81㎡/52.07㎡  
		
		 
		  | 
	
	
		|   | 
		
		
				
			
			
		 | 
		
		
		|   | 
		
		
		
		
		
		
		| 
		
			
		 | 
		
		
			
				
						
							
							
								 
							
						
    				
				
			
		 | 
		
		
		
		
		
			注目のポイント!! 
			リビングを見渡せるカウンターキッチン。全居室収納スペース付きで広々住空間。 
		
		
		- 
			所在地/交通
 
			神奈川県横浜市鶴見区東寺尾3丁目/京急線/生麦駅 徒歩20分    
		
		- 
			価格/間取り
 
			5,180万円/4LDK 
		- 
			建物面積/土地面積
 
			94.81㎡/99.59㎡  
		
		 
		  | 
	
	
		|   | 
		
		
				
			
			
		 | 
		
		
		|   | 
		
		
		
		
		
		
		| 
		
			
		 | 
		
		
			
				
						
							
							
								 
							
						
    				
				
			
		 | 
		
		
		
		
		
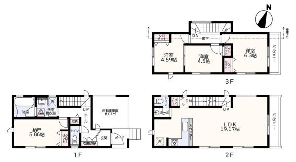
			注目のポイント!! 
			駐車スペース2台可(車種による)!約17帖の広々としたLDK。全居室収納スペース付き。 
		
		
		- 
			所在地/交通
 
			神奈川県横浜市鶴見区梶山1丁目/東急東横線/大倉山駅  バス13分 陸橋下/停歩8分  
		
		- 
			価格/間取り
 
			6,380万円/3SLDK 
		- 
			建物面積/土地面積
 
			101.85㎡/149.48㎡  
		
		 
		  | 
	
	
		|   | 
		
		
				
			
			
		 | 
		
		
		|   | 
		
		
		
		
		
		
		| 
		
			
		 | 
		
		
			
				
						
							
							
								 
							
						
    				
				
			
		 | 
		
		
		
		
		
			注目のポイント!! 
			駐車スペース2台可(車種による)!約18.1帖の広々としたLDK。全居室収納スペース付き。 
		
		
		- 
			所在地/交通
 
			神奈川県横浜市鶴見区梶山1丁目/東急東横線/大倉山駅  バス13分 陸橋下/停歩8分  
		
		- 
			価格/間取り
 
			6,280万円/3SLDK 
		- 
			建物面積/土地面積
 
			100.8㎡/189.52㎡  
		
		 
		  | 
	
	
		|   | 
		
		
				
			
			
		 | 
		
		
		|   | 
		
		
		
		
		
		
		| 
		
			
		 | 
		
		
			
				
						
							
							
								 
							
						
    				
				
			
		 | 
		
		
		
		
		
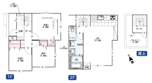
			注目のポイント!! 
			敷地内に3台分のカースペースを確保。約19.6帖の広々LDKは家族が自然と集まるくつろぎ空間。さらに、玄関周りをスッキリ保てるシューズクローク付き 
		
		
		- 
			所在地/交通
 
			神奈川県横浜市鶴見区獅子ケ谷2丁目/東急東横線/菊名駅 徒歩26分    
		
		- 
			価格/間取り
 
			5,980万円/4LDK 
		- 
			建物面積/土地面積
 
			100.19㎡/148.59㎡  
		
		 
		  | 
	
	
		|   | 
		
		
				
			
			
		 | 
		
		
		|   | 
		
		
		
		
		
		
		| 
		
			
		 | 
		
		
			
				
						
    				
						 
    				
				
			
		 | 
		
		
		
		
		
			注目のポイント!! 
			業務スーパーまで徒歩8分(約600m)、お買い物に便利。浴室には、浴室TV・全自動お湯張り機能付き。 
		
		
		- 
			所在地/交通
 
			神奈川県横浜市鶴見区駒岡1丁目/東急東横線/大倉山駅  バス12分 長松寺前/停歩7分  
		
		- 
			価格/間取り
 
			3,280万円/3LDK 
		- 
			建物面積/土地面積
 
			60.24㎡/59.32㎡  
		
		 
		  | 
	
	
		|   | 
		
		
				
			
			
		 | 
		
		
		|   |