川口市、埼玉高速鉄道「川口元郷」徒歩6分の大規模マンション レーベンスクエア川口

新築マンション・分譲マンション購入比較検討サイト オウチーノ

新宿16分・東京22分・永田町直結の東京フロントタウン
川口元郷に誕生する大規模マンション

新築・分譲マンション探しは
「オウチーノ」におまかせ!

オウチーノTOP > 新宿16分・東京22分・永田町直結の東京フロントタウン
 
新宿16分・東京22分・永田町直結の東京フロントタウン
都心の主要駅へ30分以内にアクセスできる近郊駅が人気だ。
中でも「川口元郷」は生活総合力の高さで注目を浴びる狙い目の街。
新宿から16分、都心直結 人と緑と水が出会う場所 オープンテラスカフェのある暮らし
オフタイム空間のある贅沢「ティンカーベルカフェ」
レーベンスクエア川口は「ティンカーベルカフェ」を併設。休みの日にぜひ利用したいプライベート空間だ。半円形に広がるワイドな窓から射し込む光が気持ちいい。
屋内ラウンジ
「ティンカーベルカフェ」屋内ラウンジ
併設のベーカリーからは焼きたてパンの香りも漂う。
屋外テラス
「ティンカーベルカフェ」屋外テラス
屋外の空気が心地よい、ティンカーベルカフェのテラス席。
入居者だけに用意された充実の設備
ヒーリングサロン
フェイシャルトリートメントやボディトリートメントが受けられるヒーリングサロン。
フェイシャルトリートメントやボディトリートメントが受けられるヒーリングサロン。
ヒーリングシアター
ヒーリングシアター
映像や音に癒されるヒーリングシアター。マッサージチェアも用意。
キッチンスタジアム
キッチンスタジアム
パーティーやカルチャー教室などに使えるキッチンスタジアム。
コンシェルジュが待機
コンシェルジュ
手配、取り次ぎ、ご紹介など、暮らしの質を高めるフロントサービスが受けられる。
雨の日などにうれしいミニコンビニ
ミニコンビニ
敷地内にあると便利なミニコンビニ。買い忘れや雨の日に重宝する。
焼きたてがうれしいベーカリー
ベーカリー
店内にオーブンを用意して、焼きたてのパンを販売。コーヒーや紅茶と共に楽しみたい。
充実のセレクトプラン ライフスタイルに合わせて選べる84タイプの間取りプラン

レーベンスクエア川口では67タイプの間取りプランが用意されている。
下の一例のように、リビングを広々と使うパターンや洋室・和室の仕様を変えることができるため、家族の人数や好みに応じて多様なライフスタイルに対応できる。さらに、カラーセレクトも可能となっているため、手持ちのインテリアの色調などを考慮して選びたい。
セレクトプラン一例
Aタイプ標準プラン
Aタイプ標準プラン
Aタイプ-プラン1
Aタイプ-プラン1
Aタイプ-プラン2
Aタイプ-プラン2
Aタイプ-プラン3
Aタイプ-プラン3
※6月時点では、8階以上がカスタマイズが可能です。詳しくは、スタッフまでお問合せください。
間取りAタイプ  Aタイプ
レーベンスクエア川口モデルルーム
モデルルームイメージ

レーベンスクエア川口モデルルーム
モデルルームイメージ
[4LDK]
専有面積:85.83m2
バルコニー面積:13.48m2
専用ポーチ面積:8.15m2

■パントリー・物入れなどゆとりの収納を
確保したカウンターキッチンは廊下・LDへ
の動線を設けた2WAYタイプ。
■玄関入口には、戸建感覚を高める門扉
付きの専用ポーチを設けた4LDKの角住戸。
■奥行2.0mのバルコニーに面し、2面採光・
出窓付きのLDや和室などが開放的な空間。
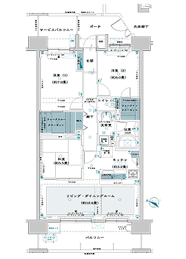
間取りIタイプ  Iタイプ
レーベンスクエア川口モデルルーム
モデルルームイメージ

レーベンスクエア川口モデルルーム
モデルルームイメージ
[3LDK]
専有面積:80.77m2
バルコニー面積:14.00m2
専用ポーチ面積:5.94m2

■洋室(1)(2)には、爽やかな朝の陽射しを
取り込める東向きバルコニーをレイアウト。
■奥行2.0mのバルコニーに面したLDと和室
を一体化すると、約18.5畳の開放的な広々
空間に。
■パントリー付のカウンターキッチンは洗面
室・LDとの2WAYタイプで優れた家事動線を
設けたプラン。
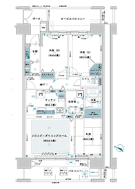
間取りDタイプ  D2タイプ
レーベンスクエア川口モデルルーム
モデルルームイメージ

レーベンスクエア川口モデルルーム
モデルルームイメージ
[3LDK]
専有面積:77.98m2
バルコニー面積:13.60m2
専用ポーチ面積:7.39m2

■約7.0畳で主寝室として十分な広さの洋室
(1)には専用のバルコニーを設置。
■奥行2.0mのバルコニーに面したLDと和室
を一体化すると、約18.5畳の開放的な広々
空間に。
■洋室(1)と和室から出入り可能なウォーク
スルークローゼット、洋室(2)のウォークイン
クローゼットなど充実の収納力。
エコロジー&エコノミーの次世代型オール電化システム採用
安全、きれいに使えて、環境にやさしいオール電化システムを採用。夜間電力を使用することで、ランニングコストも大幅に削減。
IHクッキングヒーター
IHクッキングヒーター
炎を使わず安心なIHクッキングヒーターは、フラットプレートなのでお掃除も簡単。
エコキュート
エコキュート
電気でお湯を沸かすエコキュートは、二酸化炭素が放出されず地球にやさしい。
電気式床暖房システム
電気式床暖房システム
LDには電気式床暖房システムを採用。部屋全体を足下からゆっくりと暖める。
レーベンスクエア川口 レーベンスクエア川口 販売情報
全ての面で満足できる「生活総合力」の高いマンション、「レーベンスクエア川口」は6月下旬から
第3期の販売が開始される予定だ。
キャンペーン実施中!東京フロントタウン、キーワードに答えてグルメなプレゼントをもらおう!
本キャンペーンは終了いたしました。

株式会社タカラレーベンネット推進課 0120-533-253
モデルルームマップは こちら>>
新宿から16分、都心直結 人と緑と水が出会う場所 オープンテラスカフェのある暮らし
  オウチーノTOP  初めての方へ  サイトマップ  ご利用規約  会社案内
株式会社オウチーノ