白と楽しみ色と暮らすシンプルスタイル

- 「新築に負けないくらい、白く、キレイに」がご要望でした。設備はとにかくお掃除がしやすいものに交換。
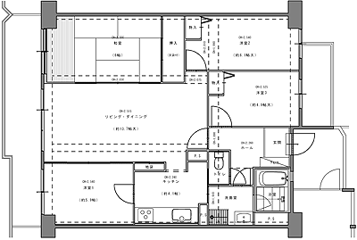
間取りはキッチンとLDの間仕切りを撤去してバーカウンターをつくり、リビングを広く使いたいとのご要望。 
- こだわりのダイニングカウンターは、ローコストながら素敵なカウンターをつくるため、材料や納まりに苦労しました。今回は、建具屋さん・大工さんにご協力頂いてカウンターを造作しました。
気に入って頂けて努力した甲斐がありました。工事後、「思ってた以上の出来!!200%満足!!」とのお言葉を頂き、営業・デザイナー・施工管理、現場の職人、全員にとって、とても嬉しい現場でした。
- この事例のリフォーム箇所

ローコストながら素敵なカウンターをつくるため、材料や納まりに苦労しました。
この事例を見たユーザーからの評価
-
- 総合評価(平均):

- 0点 / 5点
- 評価者0人
評価の詳細
- デザインがいい
-
- 0点 / 5点
- コストに納得
-
- 0点 / 5点
- 参考になった
-
- 0点 / 5点
※ 事例をご覧になった方からの評価内容をもとに上記評価を算出しています。
この事例を評価する
リフォーム箇所の情報を見る
-
リビングは明るく広く。ピンクのテーブルランナーやグリーンがアクセントです。
-
日々の生活の中でも、ごちゃごちゃとモノを置かないところがさすがです。
-
営業担当イチオシのカラーコーディネート。落ち着いた大人の和室に。
-
トイレもすっきりキレイに生まれ変わりました。
-
今回は、建具屋さん・大工さんにご協力頂いてカウンターを造作しました。
このリフォーム事例の詳細データを見る
| リフォーム箇所 | |||
|---|---|---|---|
| 住まいのタイプ | マンション | 住まいの構造 | RC造 |
| 施工面積 | - | 価格 | 527万円 |
| 施工前の間取り | 4LDK | 施工後の間取り | 4LDK |
|
|
||
| リフォーム内容 | 合計金額:5,274,000 解体工事:28.9万円、大工工事:108.2万円、電気工事:9.3万円、内装工事:112.5万円、設備工事:203万円、家具工事:10.9万円、その他工事:18.9万円、諸経費:35.7万円 |
||
| 所在地 |
|
沿線 | |
| 築年数 | 20年 | 工期 | 75日間 |
| 施工完了年月日 | 2010年6月8日 | 事例登録日 | 2011年11月19日 |








