暗いキッチンが解放感あるジャパンディに【キッチン・システムキッチン】

- 江戸川区・江東区で人気の「ジャパンディ」スタイル。
暗かったマンションキッチンが、吊戸棚の撤去とこだわりのカラーコーディネートで、開放感あふれる洗練された空間に生まれ変わりました!
- この事例のその他のリフォーム箇所
- キッチン・システムキッチン
施工:有限会社パイプライン

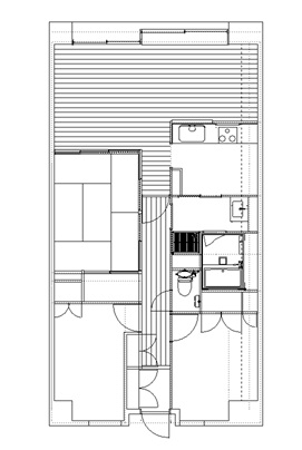
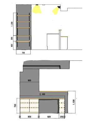
吊戸棚を撤去し、開放感あふれるジャパンディキッチンへ
この事例を見たユーザーからの評価
-
- 総合評価(平均):

- 0点 / 5点
- 評価者0人
評価の詳細
- デザインがいい
-
- 0点 / 5点
- コストに納得
-
- 0点 / 5点
- 参考になった
-
- 0点 / 5点
※ 事例をご覧になった方からの評価内容をもとに上記評価を算出しています。
この事例を評価する
フォトギャラリー(クリックで拡大できます)
-
対面キッチンなのに暗いのがお悩み
-
吊戸棚を撤去して明るさ確保
-
クロスの張り分けで立体的に
このリフォーム事例の詳細データを見る
| リフォーム箇所 |
|
||
|---|---|---|---|
| 住まいのタイプ | マンション | 住まいの構造 | RC造 |
| 施工面積 | 12.00㎡ | 価格 | 120万円 |
| 施工前の間取り | 3LDK | 施工後の間取り | 3LDK |
対面キッチンですが暗い間取 |
キッチンの吊戸を撤去して明るさを確保 |
||
| リフォーム内容 | クリナップの「ラクエラ」をベースに、床材や造作家具までジャパンディスタイルを意識し、トータルでコーディネート。全体の色のトーンを統一し、洗練されつつ温かみのあるインテリアに仕上げました。吊戸棚の撤去でキッチンに明るさを呼び込み、収納量が減った分は、パイン集成材で仕上げた「造作可動棚」で補っています。既製品にはない温かみと、ライフスタイルに合わせた自由な収納を両立させました。 | ||
| 使用した住設機器・資材等 | クリナップ・ラクエラ | ||
| 所在地 |
|
沿線 |
|
| 築年数 | 40年 | 工期 | 8日間 |
| 施工完了年月日 | 2026年2月13日 | 事例登録日 | 2026年4月24日 |
| 施工リフォーム会社 | 有限会社パイプライン | ||
有限会社パイプラインのその他のリフォーム事例
-

外壁サイディング帯板の塗装が剥がれ、水が入り込んでいました。 板金で…
-

洋服の収納スペースを確保するため、斜めの壁一面をクローゼットに。 既…
-

アコーディオンカーテンと、隣のガラス入りドアを交換。 新規建具は両方…
-

商品のシリーズなどはお客様である程度絞っていらっしゃったので、実機の…
-

読書が趣味のご家族。沢山の本を収納する為、可動式の収納棚を造作。収納…
-

ご予算枠で納まる機器でお見積りました。 浴室内に梁がある為、照明の位…











