建築家・堀紳一朗さんの作品
犬と共に暮らす家

室内に光を届けるリノベーション
- 依頼者の要望
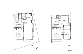
- ご依頼いただいたのは築15年の2階建ての木造住宅に3匹の犬と暮らしている奥様から改修工事でした。
改修に当たってご要望は3つありました。①犬中心の生活のため人を招くことができない状況であるのを打開すること、②犬に快適な環境とすること、③1階リビングなど主要空間が暗いので明るくする方法を検討することでした。
- 建築家のコメント
- 既存の階段トップライトからの光が1階に行き渡るようにリビングを移し、階段吹抜けに面した2階の各部屋には回転窓を設けて採光と通風の環境を整えました。来客時・在宅時・外出時に応じてゾーン分け出来るようにし、今まで犬から守るため押入れに隠していたピアノを階段下に収納して必要なときに弾けるようにしました。
フォトギャラリー(クリックで拡大できます)
この建築作品の基本データ
※この作品事例の登録日は、2014年11月04日です。
※総工費は設計監理料と土地代を除いた総工費の目安金額となります。
この作品の建築家にプランを相談する

この作品事例を見たユーザーからの評価
総合評価(平均):
評価の詳細
- デザインがいい
-
(3.1点/5点) 評価者7人
- コストに納得
-
(3.3点/5点) 評価者7人
- 参考になった
-
(3.1点/5点) 評価者7人
この作品を評価する
















矢来の家(減築リフォーム)
葛飾区H邸リフォーム
aaa邸リフォーム
学園前緑ヶ丘の家
平屋 和風モダンの家