建築家・星名岳志 星名貴子さんのブログ一覧
2018/01/15 更新
こんにちは。一年で一番寒い季節ですが、完成見学会のお知らせです。築23年のマンションのリノベーションです。寒くて外出が億劫...かもしれませんが、とても貴重な機会ですので、是非ご参加ください。チーク材や大谷石、タモの天井ルーバーなど素材の良さ、伸びやかにつながった住空間の快適さを感じていただけると思います。 詳細、お申し込みはハンズデザインのホームページからお願いします。 http://www.hands-a-design.jp/...
2017/11/13 更新
今朝目覚めて窓から外を見たら、公園の木々が鮮やかな黄色や赤に一気に色づいていてシャキッと目が覚めました。 秋が深まり、ようやく安定したお天気になってお出かけしたい気分になりますね。 街では早々とクリスマスやお正月の準備が始まっていますが、ハンズデザインからも年末の完成見学会のお知らせです。 お施主さんのNさんと最初にお会いしたのは、昨年の秋の見学会でのことでした。その後、私たちの家にもお越しいただいてご相談がスタートしました。最...
2016/12/06 更新
こんにちは。いよいよ師走に入りましたね。 今年もカウントダウンに入りなんだか気持ちがソワソワしてきます。 さて2016年、最後の見学会のご案内になりました。 お施主様のご厚意により開催致します。 京成線 東中山駅 徒歩7分、JR総武線 東中山駅 徒歩14分。 12月17日(土)、18日(日)の10時~17時です。 事前予約が必要です。 お気軽に、そしてお早めにご予約ください! 詳しい内容は下記ブログでどうぞ。 http:/...
2016/12/06 更新
こんにちは。 12月1日発売、エックスナレッジ出版の雑誌「建築知識」の デキる設計事務所のWEBサイト拝見![第9回] のコーナーに私たちのホームページが掲載されました!! 私たちの作る住まいの空気感が伝わるように また見てくださる方に親近感を持ってもらえるように いろいろと工夫した様子が紹介されていますので 書店に立寄った際は是非お手に取ってみてください。 ホームページも是非チェックしてくださいね!
2016/08/08 更新
こんにちは。 いよいよ夏本番ですね! 7月30日発売、リクルートさんの首都圏版suumoリフォームの巻頭特集ページに『私たちの家』が掲載されました。 書店に立寄った際は是非お手に取ってみてください! この家に住みはじめて3年半が経ちました。 日々の生活ではなかなか変化に気づきにくいものですが、 写真で改めて見ると無垢の床や家具の味わいがいい感じに増してきています。 ホームページも新しく『みんなの家』のコーナーができましたので...
2016/06/22 更新
こんにちは。 ブログを更新しました。 ハンギングプランツなどについて書いています。 写真が多くて、うまくこちらのブログにアップできないので、 是非ホームページからご覧下さい! http://www.hands-a-design.jp/myhome/material/3442.html
2016/05/16 更新
東京下町。とうとうIさんの家をご紹介できる日がやってきました。 東京メトロ千代田線根津駅から徒歩5分。 マンションリノベーション完成見学会をお施主様のご厚意により開催します。 5月21日(土)、22日(日)の10時〜17時です。 最初にご相談をいただいたのが2年前。人一倍リノベーションの住まいづくりを楽しまれたご夫婦と言って良いのではないかと思います。 僕の個人的な意見として強く言わせていただくと、今回のIさんの家だけは見逃さな...
2016/03/14 更新
こんにちは。 文京区根津でマンションリノベーション工事がはじまりました! Iさんが私たちの事務所を訪れたのはちょうど2年前の春。 『私たちの家』の雑誌掲載をご覧いただき、マンションでもお風呂が窓際に動かせる! ということに希望を持ってご来社されました。 新築で購入した今のマンションは15年間、部屋の一番奥にあって窓のない暗いお風呂を ずっと我慢して使われてきたそうです。 お風呂で気持ち良い時間を過ごしたいということがリノベーシ...
2015/10/26 更新
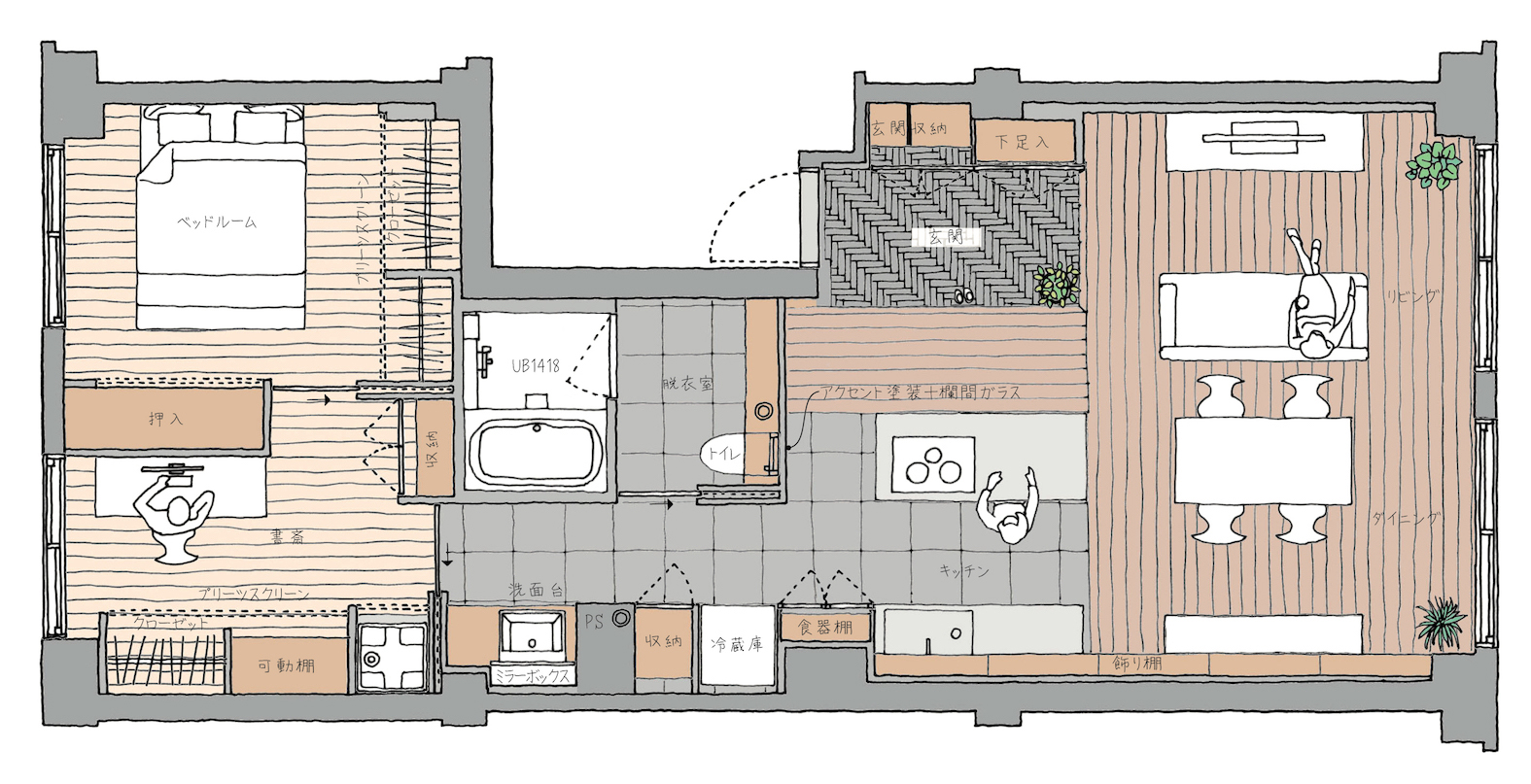
こんにちは。 今週末の見学会に向け最後の仕上げ工事に入り、現場は毎日たくさんの職人さんが出入りしています。 完成に近づいていく様子を少しだけ見ていただこうと思います! この日は塗装屋さんがアクセントのソフトスウェードという塗装壁を仕上げていました。 刷毛でランダムに仕上げることで、名前の通りスウェードのような風合いがでる塗装です。 無駄な動線をつくらないように考えられた間取りは、入るとすぐキッチンが見えます。 少しむらのあるタ...
2015/10/26 更新
こんにちは。秋らしくなりましたね。 マンションリノベーションの完成見学会のお知らせです。日程は10/31(土)・11/1(日)で、今年はこれが最後になります。築29年の見晴らしのいいタワーマンションです。 今回の物件は興味深い間取りで、『台所には食堂から入らなければならない』的な強い信念を感じました。 しかしその結果、暗くて圧迫感のある玄関、暗くて長い廊下、暗くて窮屈な洗面室になっていました。 中古マンションは建設当時のライフス...
2015/10/09 更新
こんにちは。マンションのスケルトンリノベーションがスタートしました。 最初にご相談頂いてお宅を訪問した時には、まだSさんのご両親が住んでいる築29年83平米お住いでした。 ご両親は介護のため東京と田舎を行ったり来たりする生活を送られていましたが、田舎暮らしが気に入り定住することになり、息子さんご夫婦の住まいとして新しくリノベーションのご相談をいただきました。 1歳になったばかりの男の子とご夫妻の3人家族の住まいです。これから家族が...
2015/10/09 更新
4人家族と愛犬のためのマンションリノベーションで、大好きな家具や植物、雑貨などが美しく映える、落ち着いた色調の住まいです。無垢のブラックウォールナットのフローリング。艶や質感の異なる塗料を使った柔らかい反射の壁。木のあたたかさ、柔らかな雰囲気を添えるタモ材のルーバーや天井。冷蔵庫も格納している4枚の引き戸の裏にある大容量のキッチン収納。手元を隠した落ち着いた印象のオーダーメイドキッチンにはミーレの食洗機、深いシンク、スライドする作...
2015/10/09 更新
こんにちは。今年は残暑がほとんどなく、急に寒くなってしまいましたね。 気持ちよい季節を逃さないように、休日に自転車でお出かけしてきました! 今回は市川周辺をぶらり旅。おいしいものを探す旅です。 まず国府台で気持ちの良いテラス席があるカフェを見つけました。 自社農園で作った野菜をたくさん食べれるカフェです。 私たちが頼んだのはビザプレート。 色とりどりの野菜と香草(バジル)が載ったピザは、また食べに行きたくなる味でした。 千葉の名物...
2015/09/10 更新
こんにちは。 ハンズデザインの星名です。 ずいぶん涼しくなりました。朝晩は寒いぐらいですね。 今日は完成見学会のお知らせです。 マンションリノベーション完成見学会! 9月12日(土) 10:00〜17:00 JR総武本線・メトロ新宿線 『本八幡』 徒歩5分 予約制です。:事前にご連絡いただいた時に詳しい住所をお伝えいたします。 電話またはHPのお問い合わせページよりご連絡ください。 TEL:047-406-7077 HPUR...
2015/05/18 更新
『私たちの家』で一番こだわってつくったのは“キッチン”です。 キッチンは毎日食事をつくる場所で家族が集う中心になる場所ですから、 家づくりをするときにとても大切に慎重に考える必要があります。 どんなキッチンが良いのか? たくさんの選択肢がありますが、私はやっぱり造作(オーダーメイド)のキッチンをおススメしたいです。 その理由を下記のテーマでまとめてみました。 ◆『自由な間取り・動線計画』ができること。 ◆『様々な素材を使える...
2015/03/26 更新
3月28日と29日に完成見学会を開催させていただくTさんの住まいは、現在は最終調整に入っております。今回の計画はコンパクトな住まいにデザインや工夫が「ギュッ」と詰まった濃密な雰囲気になりましたので、参考にしていただけるところは多いと思います。少しだけ写真を撮ってきましたのでご覧ください! 天気予報によると今週末に向けて暖かくなり一気に桜が開花するそうですね。現地は不動前駅から徒歩5分ほどのところです。天気も良さそうなので足を延ば...
2015/03/19 更新
こんにちは!桜開花まで秒読みですね。私たちのお花見は、今年は目黒川になりそうです。 夫婦二人暮らしのためのキッチンが真ん中にあるリノベーション 完成見学会!を開催します。 3月28日(土)・29日(日) 10:00〜17:00 東急目黒線 不動前駅 徒歩5分 完全予約制です。:事前にご連絡いただいた時に詳しい住所をお伝えいたします。 電話またはHPのお問い合わせページよりご連絡ください。 tel:047-406-7077 H...
2014/11/25 更新
ギャラリーのようなAさんの家のマンションリノベーション in 浦安』完成見学会日程決定!! こんにちは!あっという間に年末感が漂ってきましたね~。 完成見学会の日程を決定しました! ■日時:2015年1月3日(土)、4日(日)10時~17時 ■場所:東西線新浦安駅から徒歩10分 プライバシー配慮のため予約制とさせていただきます。 ホームページのお問い合わせ、メール、電話などでお気軽にお申し込みください。 ご予約頂いた方に...
2014/11/20 更新
「北鴻巣の家(埼玉県鴻巣市)」内覧会のお知らせ 北鴻巣の家は12月末の竣工引渡に向けて工事中です。 4人家族のための木造2階建ての住まいです。 建主様のご厚意により内覧会を開催できることになりましたのでご案内いたします。 ■開催日時:12月13日(土)14日(日)10時~17時 ■場所:埼玉県鴻巣市赤見台*詳細な住所は内覧会のお申し込みを頂いた際にお伝えいたします。 北鴻巣の家は木造2階建ての住宅です。 昭和60年頃に開発さ...
2014/11/12 更新
千葉県浦安市でマンションのリノベーション工事が始まりました! ブログでご紹介していますので是非ご覧ください。 ギャラリーのようなAさんの家のマンションリノベ →http://www.hands-a-design.jp/blog/2345.html Aさんの家工事経過 →http://www.hands-a-design.jp/blog/2354.html


















