
![]()

都心部や住宅密集地などでは、15坪に満たないようないわゆる「狭小地」も少なくありません。こうした狭小地での家づくりには、法律上の制限に加え、限られたスペースをいかに活用するかといった課題が常につきまといます。しかしそんな狭小地での設計こそ、建築家が最も得意とする分野。ハウスメーカーや工務店には真似できない狭小住宅設計の「極意」を、2人の建築家の事例から読み解いてみましょう。
狭小住宅プランニング
長浜建築設計 長浜信幸さんの場合<南台の家>
重要なのは建て主さんとの対話
じっくり話し合って快適な家づくりを
狭小地での設計で重要なのは、建築家と建て主さんがじっくり話し合うことです。狭小地は利用できるスペースが限られていますから、当然、建て主さんの要望をすべて実現することが難しいケースもあるでしょう。だからといって、「スペースがないので無理です」と、即座にはねつけてしまうようでは、建築家の存在意義はなくなってしまいますよね。きちんと話し合い、どうしたら理想の住まいが実現できるかを一緒に考えることで、小さな土地でも驚くほど快適な家づくりは可能です。そのために、たとえば、螺旋階段を使う方法は有効です。通常の階段より省スペースで設置でき、空間のアクセントとしての役割も果たしてくれます。また、「動線を考えた窓の配置」という方法も効果的です。各シーンで、住まい手の視線がどこに向くのか?を考えてその先に窓を配置すれば、限られた空間でも広さを感じることがでるようになります。もちろん、やみくもに窓を設けてしまうと、今度は外からの視線が気になります。そこで「南台の家」では、敷地の角にコンクリートの壁を立ち上げています。これは、外部からの視線を遮るだけでなく、日光を反射させて室内に取り込む、反射板のような役割も兼ねているのです。スペースの限られた狭小地では、このように1つのアイデアにたくさんの解決方法を盛り込むことも大切になります。
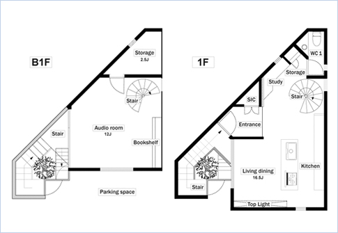
敷地に合わせた建物形状でスペースを有効活用
斜線制限に沿って屋根を斜めにカット
らせん階段で移動のためのスペースは最小限に
今回の敷地は三角形でしたので、敷地の形状に合わせて建物も三角形にしました。こうした変形の建物はハウスメーカーや工務店では対応できないケースも多いので、建築家の腕の見せ所と言えるでしょう。屋根も斜線制限に合わせて斜めにカットし、狭くなった屋根下のスペースに浴室を配置しています。また、廊下や階段などの「移動のためのスペース」を最小限に押さえるため、螺旋階段を採用しています。

- 1988年 早稲田大学理工学部建築学科卒業
- 1990年 早稲田大学大学院修了
- 1990年 (株)アーキテクトファイブ勤務
- 1992年 (株)環境デザイン研究所勤務
- 1998年 長浜信幸建築設計事務所設立
- 1999年~2002年 早稲田実業学校国分寺校舎建築計画顧問
















